Sanierungsbedürftige 3-Zimmer-Wohnung mit ca. 77 m² inkl. Loggia in +++ Zeltweg +++
Zum Verkauf gelangt eine gut geschnittene Eigentumswohnung im 3. Obergeschoss mit ca. 76,69 m² Gesamtnutzfläche in toller Lage in Zeltweg inkl. Loggia. Die Wohnung ist ideal für Paare oder kleine Familien geeignet und beeindruckt nicht nur durch eine ausgezeichnete Lage, sondern auch durch die durchdachte Raumaufteilung und lichtdurchflutete Wohnräume.
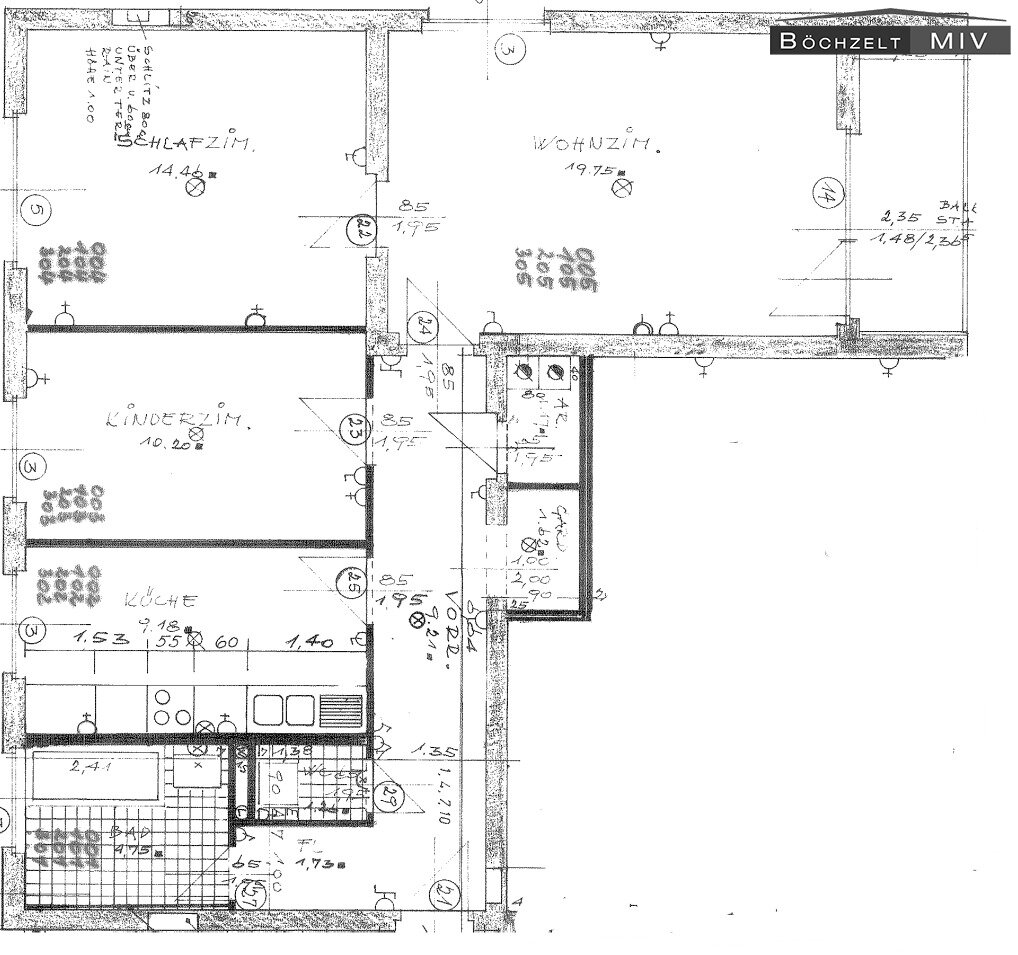
Die Wohnung im 3. Obergeschoss teilt sich wie folgt auf: Vorraum, Badezimmer mit Dusche und Wanne, WC, Abstellraum, Garderobennische, Küche, Wohnzimmer, Schlafzimmer, Kinderzimmer sowie Loggia / Balkon. Der Wohnung ist auch ein Kellerabteil zugewiesen. Allgemeine Parkplätze befinden sich auf der Liegenschaft.
Die Wohnhausanlage wurde ca. 1972 errichtet, der Zustand der Wohnung als solches lässt sich als Sanierungsbedürftig bezeichnen. Am Wohngebäude wurden ca. 2010 Wärmedämmmaßnahmen durchgeführt, dabei wurde die Fassade, die Kellerdecke sowie die oberste Geschossdecke gedämmt. Die Blitzschutzanlage wurde 2013 erneuert. Die Stiegenhausfenster wurden 2003 ausgetauscht, die Fenster der Wohnung wurden im Jahr 1996 getauscht, es sind 2-fach-verglaste Kunststofffenster mit außenliegendem Sonnenschutz vorhanden. Die Beheizung der Wohnung erfolgt über Nachtspeicheröfen bzw. elektrische Konvektoren. Derzeit ist die Sanierung der Asphaltbeläge seitens der Hausverwaltung geplant. Eine Kostenschätzung liegt der Hausverwaltung derzeit nicht vor.
Die monatliche Vorschreibung der Hausverwaltung beläuft sich auf derzeit 221,55 € inkl. Betriebs-, Verwaltungskosten und Rücklage. Die Instandhaltungsrücklage für die Gesamtliegenschaft weist per Ende November 2025 ein Guthaben von ca. 53.189,13 € auf.
Eckdaten und Ausstattungshighlights:
- 3-Zimmer-Wohnung im 3. OG
- ca. 72,26 m² Wohnnutzfläche
- zzgl. westseitige Loggia / Balkon mit ca. 4,43 m²
- geräumiges Kellerabteil
- allgemeine Parkplätze bei der Liegenschaft
- begehrte Lage in Zeltweg
- Kaufpreis: 64.900 € - nur ca. 850 EUR pro m²!
- kurzfristige Verfügbarkeit
ACHTUNG: Ab 01.04.2024 entfallen die Grundbuchseintragungsgebühr in Höhe von 1,1 % sowie die Pfandrechtseintragungsgebühr in Höhe von 1,2 % bei Erwerb von Wohnraum, der als Hauptwohnsitz genutzt wird. Schnell zuschlagen und von der Gebührenbefreiung profitieren!
Wir haben Ihr Interesse an dieser Wohnung geweckt? Dann überzeugen Sie sich selbst und zögern Sie nicht einen unverbindlichen Besichtigungstermin zu vereinbaren. Gerne können Sie Herrn Weikl unter 0660/47 40 573 kontaktieren!
Die Hausverwaltung des Objektes lässt derzeit einen neuen Energieausweis anfertigen, sobald dieser vorliegt wird der Energieausweis entsprechend nachgereicht.
Der Vermittler ist als Doppelmakler tätig.
Infrastruktur / Entfernungen
Gesundheit
Arzt <250m
Apotheke <250m
Krankenhaus <500m
Kinder & Schulen
Schule <500m
Kindergarten <500m
Nahversorgung
Supermarkt <500m
Bäckerei <750m
Einkaufszentrum <1.000m
Sonstige
Bank <500m
Geldautomat <500m
Post <750m
Polizei <4.500m
Verkehr
Bus <500m
Autobahnanschluss <1.750m
Bahnhof <750m
Flughafen <1.500m
Angaben Entfernung Luftlinie / Quelle: OpenStreetMap
* Kaufpreis ohne Nebenkosten (Grunderwerbsteuer, Eintragungsgebühr, Vertragserrichtungskosten, Maklerprovision)
Johann Milchberger
8720 Knittelfeld,
Schmittstrasse 17
Tel.: +43 3512/82237
E-Mail: office@boechzelt-immobilien.at
Web: www.boechzelt-immobilien.at
