Gewerbeobjekt in Schlöglmühl / Gloggnitz - ehemaliges Postverteilerzentrum
Sie suchen eine Gewerbehalle für Ihr Unternehmen? Oder gar einen Standort für Ihren Handels- oder Bürobetrieb? Dann sind Sie bei uns genau richtig. Zum Verkauf gelangt eine Halle in Schlöglmühl mit einer Grundstücksfläche von ca. 3.849,00 m², sowie einer Gesamtutzfläche von insgesamt 743,93 m².
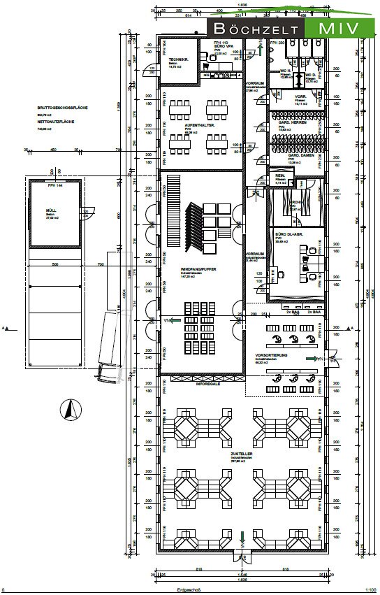
Die Gesamtnutzfläche verteilt sich auf das Hauptgebäude mit Hallenflächen im Ausmaß von ca. 451,42 m² (Zustellerbereich, Vorsortierung und Windfang), sowie dem Bürobereich, bestehend aus Büroräumlichkeiten, Sozialraum, Lagern, Technikraum, Garderoben, Vorraum und WC-Anlagen. Zudem besteht noch ein Nebengebäude, welches derzeit als Lagerraum genutzt wurde im Ausmaß von ca. 27 m². Das Nebengebäude ist mit dem Hauptgebäude über ein Flugdach verbunden. Die Grundstücksfläche liegt lt. Internetauskunft des GIS Niederösterreich im Kerngebiet, ein Teil des Grundstückes (Parkplätze) liegt in der gelben Zone. Die Zufahrt erfolgt über ein grundbücherlich gesichertes Servitut am Grundstück 373 der KG 23140 Schmidsdorf.
Das ehemalige Postverteilerzentrum wurde Ende 2012 fertiggstellt und wurde bis Ende Juni 2024 von der Österreichischen Post AG als Zustellbasis genutzt. Das Objekt wird mittels Gaszentralheizung beheizt. Parkplätze im Außenbereich sind ca. 72 Stk. verfügbar. 2023 wurde eine neue Photovoltaikanlage am Dach der Liegenschaft mit ca. 45 kWp errichtet. Die vorliegende EDV-Verkabelung wird über die Decke bzw. in Kabelkanälen geführt.
Flächen, Eckdaten und Ausstattungshighlights:
- Kaufpreis: 849.000 € zzgl. USt. (Überrechnung möglich)
- Massiver Gewerbebau (25er Ziegel + 10 cm VWS)
- 3,26 Meter Höhe innen
- Gaszentralheizung mit Fußbodenheizung
- 45 kWp Photovoltaikanlage (dzt. Volleinspeiser)
- elektrische Schiebetüren mit Torluftschleier
- Gesamtnutzfläche 743,93 m²
- 451,42 m² Hallenfläche und Windfang
- 27 m² Nebengebäude
- 72 Autoabstellplätze und gepflastere Außenanlagen
- Hallenflächen, Büros, Aufenthaltsraum, Garderoben, Herren- und Damen-WC, Abstellräume etc.
- Besichtigungen nach Vereinbarung jederzeit
Sie wollten sich von der Liegenschaft selbst überzeugen? Dann zögern Sie nicht uns für einen unverbindlichen Besichtigungstermin zu kontaktieren! Es besteht auch die Möglichkeit die Liegenschaft um 5.500 EUR netto zzgl. Ust pro Monat zu mieten (inkl. Betriebskosten / Heizung und Strom separat)!
Wir weisen darauf hin, dass zwischen dem Vermittler und dem zu vermittelnden Dritten ein familiäres oder wirtschaftliches Naheverhältnis besteht.
Der Vermittler ist als Doppelmakler tätig.
Infrastruktur / Entfernungen
Gesundheit
Arzt <2.275m
Apotheke <1.775m
Krankenhaus <9.525m
Kinder & Schulen
Schule <1.775m
Kindergarten <825m
Nahversorgung
Supermarkt <1.700m
Bäckerei <2.250m
Einkaufszentrum <2.250m
Sonstige
Bank <1.825m
Geldautomat <1.825m
Post <1.825m
Polizei <2.175m
Verkehr
Bus <50m
Bahnhof <125m
Autobahnanschluss <2.775m
Angaben Entfernung Luftlinie / Quelle: OpenStreetMap
* Kaufpreis ohne Nebenkosten (Grunderwerbsteuer, Eintragungsgebühr, Vertragserrichtungskosten, Maklerprovision)
Johann Milchberger
8720 Knittelfeld,
Schmittstrasse 17
Tel.: +43 3512/82237
E-Mail: office@boechzelt-immobilien.at
Web: www.boechzelt-immobilien.at
